長期・継続利用受付中!
費用削減のチャンス!

2025年9月2日(火)オープン!ヒューリックスクエア福岡天神の貸会議室

RENTAL ROOM会議室詳細

会議室画像
会議室画像
会議室画像
サムネイル画像
サムネイル画像
サムネイル画像

HS501会議室

基本情報

会議室名 HS501
定員 45名
面積 67.62㎡(20.45 坪)

ご利用料金(税抜)

  1時間 2時間 3時間 4時間 5時間 6時間 7時間 8時間 9時間 延長
税抜き 25,60029,60033,60037,60041,60045,60049,60053,60057,600 9,600
(税込み) (28,160)(32,560)(36,960)(41,360)(45,760)(50,160)(54,560)(58,960)(63,360) (10,560)

※9時以前、18時以降のご利用は、早朝/夜間料金時間帯となります。
※土日祝日のご利用は上記の金額の2割アップとなります。ただし早朝/夜間料金時間帯の適用はありません。

レイアウト例

  • スクール形式
  • グループ形式
  • ロの字形式
  • シアター形式
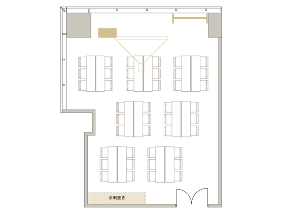
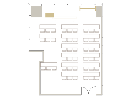
スクール形式

スクール形式収容人数

3名掛け 45名
2名掛け 30名
HS501のレイアウトをダウンロード
グループ形式

グループ形式収容人数

3名掛け 42名
2名掛け 28名
HS501のレイアウトをダウンロード
ロの字形式

ロの字形式収容人数

3名掛け 30名
2名掛け 20名
HS501のレイアウトをダウンロード
シアター形式

シアター形式収容人数

収容人数 63名
HS501のレイアウトをダウンロード

その他の貸会議室

  • 写真
  • 貸会議室名
  • フロア
  • スクール形式
  • ロの字形式
  • グループ形式
  • シアター形式
  • 面積
  • 3時間料金
  • 9時間料金
  • 5F
    36名
    24名
    36名
    39名
    39.57㎡
    25,920
    (28,512)
    49,920
    (54,912)
  • 4F
    132名
    48名
    84名
    136名
    155.54㎡
    109,200
    (120,120)
    163,200
    (179,520)
  • 5F
    99名
    48名
    84名
    131名
    150.46㎡
    89,200
    (98,120)
    140,800
    (154,880)
  • 5F
    156名
    66名
    120名
    193名
    219.04㎡
    120,800
    (132,880)
    204,800
    (225,280)
  • 5F
    -
    -
    14名
    -
    30.6㎡
    15,800
    (17,380)
    35,840
    (39,424)
  • 4F
    69名
    30名
    48名
    69名
    84.12㎡
    55,400
    (60,940)
    99,200
    (109,120)
  • 4F
    195名
    66名
    138名
    234名
    311.16㎡
    193,000
    (212,300)
    322,000
    (354,200)
  • 4F
    195名
    66名
    150名
    234名
    243.57㎡
    143,000
    (157,300)
    272,000
    (299,200)
  • 5F
    72名
    36名
    48名
    80名
    92.9㎡
    60,600
    (66,660)
    105,600
    (116,160)
  • 5F
    24名
    18名
    24名
    28名
    39.58㎡
    20,040
    (22,044)
    42,240
    (46,464)
  • 5F
    72名
    36名
    48名
    80名
    92.9㎡
    60,600
    (66,660)
    105,600
    (116,160)
  • 4F
    -
    -
    8名
    -
    21.35㎡
    14,800
    (16,280)
    35,200
    (38,720)